Description
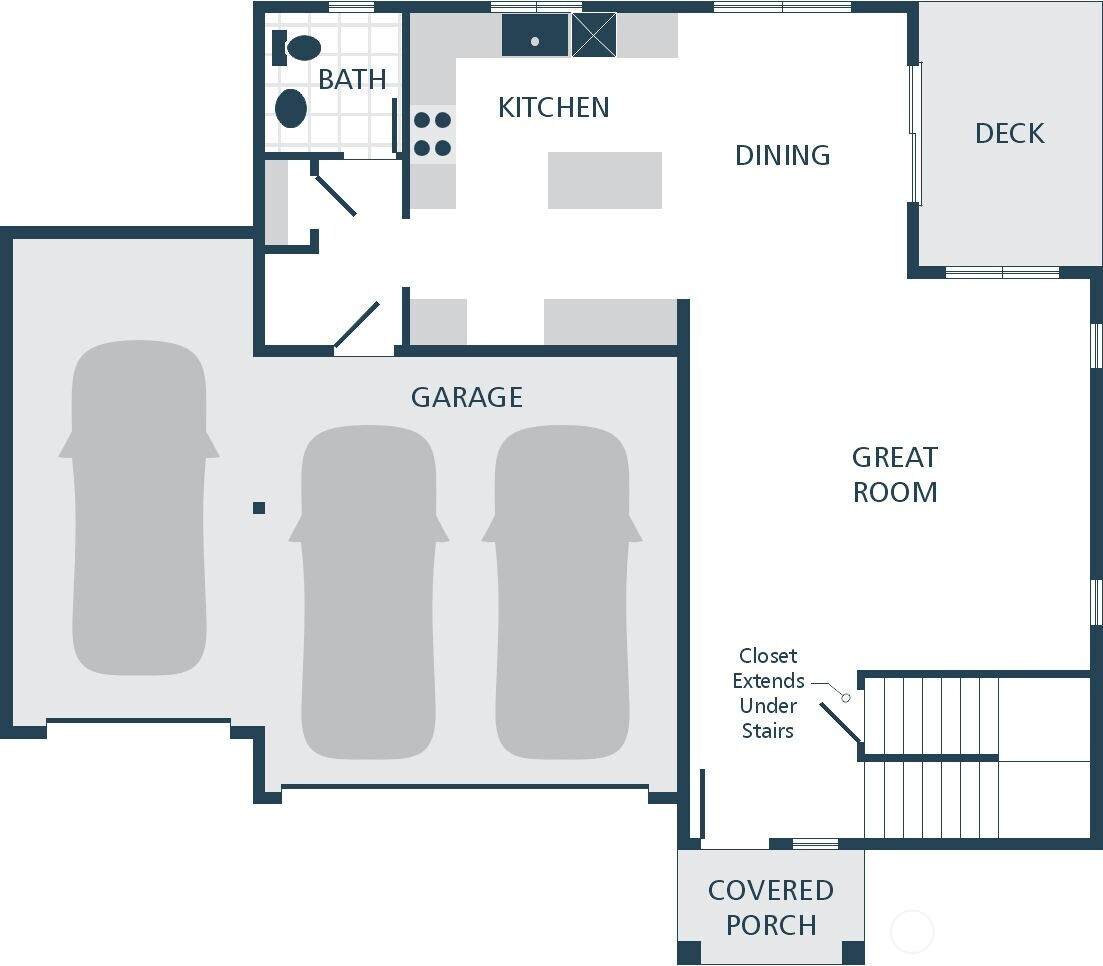
Introducing Taylor Lane! THE CAYDEN design A plan on lot 7 is a thoughtfully designed layout that offers 2082 sqft home with 3- bedrooms, and a loft, 2.25- bathrooms and a spacious 3 car garage. Taylor Lane offers timeless features such as elegant quartz countertop's and matching backsplash, stainless steel kitchen appliances, gorgeous laminate hardwood flooring in kitchen dining and great room, white painted millwork, efficient heat pump for heating and cooling. Enjoy an easy commute with abundant shopping and dining opportunities just minutes away. Explore your possibilities today! Enjoy the benefits of NEW! New home warranty, energy efficient, low maintenance, updated safety & modern lifestyle design elements. Don't miss out on this one!
-
3BEDS
-
0.11ACRES
-
2BATHS
-
11/2 BATHS
-
2,082SQFT
-
$351$/SQFT
School Information
Listing information ©2026 Northwest MLS. Listing courtesy of Windermere Real Estate/M2, LLC.
Mortgage Calculator is provided by BoomTown.
Description
Introducing Taylor Lane! THE CAYDEN design A plan on lot 7 is a thoughtfully designed layout that offers 2082 sqft home with 3- bedrooms, and a loft, 2.25- bathrooms and a spacious 3 car garage. Taylor Lane offers timeless features such as elegant quartz countertop's and matching backsplash, stainless steel kitchen appliances, gorgeous laminate hardwood flooring in kitchen dining and great room, white painted millwork, efficient heat pump for heating and cooling. Enjoy an easy commute with abundant shopping and dining opportunities just minutes away. Explore your possibilities today! Enjoy the benefits of NEW! New home warranty, energy efficient, low maintenance, updated safety & modern lifestyle design elements. Don't miss out on this one!
IDX information is provided exclusively for consumers’ personal noncommercial use, that it may not be used for any purpose other than to identify prospective properties consumers may be interested in purchasing.The listing data relating to real estate for sale on this web site comes in part from the Northwest Multiple Listing Service. Real estate listings held by brokerage firms other than Tri-Cities Realty Group, LLC are marked by the "three tree" symbol; detailed information about such listings includes the names of the listing brokers. The three tree icon refers to an NWMLS listing. Data last updated 2026-01-16T22:15:00.03. The "Days on Site" data field is calculated by BoomTown and is the number of days since the listing was originally received in our system. It is not the equivalent of "Days on Market". Based on information submitted to the MLS GRID as of 2026-01-16T22:15:00.03. All data is obtained from various sources and may not have been verified by broker or MLS GRID. Supplied Open House Information is subject to change without notice. All information should be independently reviewed and verified for accuracy. Properties may or may not be listed by the office/agent presenting the information.
